Самостоятелна къща в луксозен затворен жилищен комплекс в м-т Камбаните
град София, м-т КамбанитеОписание на имота
BULGARIA SOTHEBY’S INTERNATIONAL REALTY представя на Вашето внимание самостоятелна къща в луксозен затворен жилищен комплекс в м-т Камбаните съчетаващ най-доброто от природата, спокойствието и удобствата на модерния градски стил. Комплексът олицетворява спокоен живот в живописна среда с чист въздух, на обща площ от 110 000 кв.м., от които 92 000 кв.м, както и 10 ДКА собствен парк, на който могат да се наслаждават всички собственици от самото начало на проекта.Комплексът се състои от три фази и предлага разнообразие от жилищни възможности с уникална архитектура и функционален дизайн:
ХАРАКТЕРИСТИКИ НА ОБЕКТА:
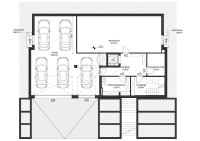
Къща Тип "C1-3"
Обща застроена площ: 990.00 m2
Площ имот: 926.00 m2
Двор с веранда: 450.00 m2
Къща на три нива:
Партер: гараж за пет коли, фитнес и СПА, техническо помещениеq мокро помещение;
Първи етаж: антре, дневна с трапезария и кухня, веранда 58.24 кв.м., кабинет, склад,дрешник, спалня с дрешник и баня с тоалетна, тоалетна за гости.
Трети етаж: пет спални със собствен дрешник и баня с тоалетна.
ТЕХНИЧЕСКИ ХАРАКТЕРИСТИКИ:
• Иновативни системи за сигурност от ново поколение /VIP Security/;
• Готов за интелигентен дом / Smart Home System;
• Френски прозорци;
• Високи тавани / 3+м светло;
• Иновативна топлоизолационна система;
• Просторни помещения;
• Термопомпена отоплителна система;
• Басейн - опция за къщи;
• Фотоволтаици с инверторни централи.
ПРЕДИМСТВА:
• Затворен комплекс с 24 – часов контролиран достъп
• Собствен парк
• Въжени паркове
• Детски център и детски площадки:
• Маршрут за бягане
• Зони за отдих и барбекю
• Разнообразна растителност
• Игрище за футбол
• Тенис корт и баскетболно игрище
• Йога студио, фитнес и спа център
• Търговска зона
• Парк за разходка и домашни любимци
• Кино и игрална зала
ЛОКАЦИЯ:
Комплексът е изграден с мисъл и отношение към всеки детайл, така че да можете да се отдалечите от забързаниия градски живот и същевременно да бъдете близо до всички градски удобства. В него е изградена нова среда за живот, в която няма да ви липсва нищо.
Благодарение на end-to-end on-demand услуги за Вас и Вашето семейство, няма да се налага да губите ценно време в градския трафик - ще можете да го вложите в нещата, които обичате, а същевременно всяка гореща Софийска точка си остава близо - на не повече от 15 минути с кола. Отличително близо до:
Околовръстен път: Бърз и лесен достъп до центъра на София и всички ключови места в града.
София Ринг Мол: За Вашето шопинг удоволствие и разнообразие от магазини и развлечения.
Икеа: Вашето място за пазаруване за дома на само няколко минути разстояние.
Имате възможност да се наслаждавате на красотата на природата и местните забележителности в допълнение на разположените на пешеходно разстояние са екопътеки, веломаршрути и немаркирани пътеки. Станете част от идеалното място за живеене, където да отгледате Вашето семейство в духа на здравословния и необезпокояван начин на живот.
Добре дошли в бъдещето на жилищните комплекси – вашето ново уютно гнездо в ж.гр. Камбаните!
План на плащане 1 - 25% на предварителен договор, 20% на акт 14, 20% на акт 15 и 35% на акт 16 .
План на плащане 2 - 100% на предварителен договор.
План на плащане 3 - 25% на предварителен договор, 75% на акт 16.
Цената е без ДДС.
Ref.№6952
- В затворен комплекс
- В строеж
- Видео наблюдение
- Затворен комплекс
- Необзаведен
- С паркинг
