Описание на имота
BULGARIA SOTHEBY’S INTERNATIONAL REALTY има удоволствието да представи на Вашето внимание луксозен жилищен комплекс от затворен тип, състоящ се от 80 къщи и 4 блока с апартаменти. С модерна архитектура, изцяло подчинена на използването на естествени материали, съчетаваща комфорт, функционалност и висок стандарт.
ХАРАКТЕРИСТИКИ НА ИМОТА
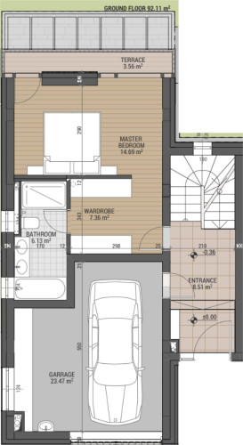
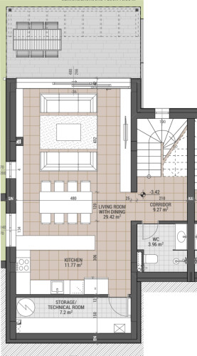
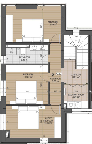
КЪЩИ Т4 - Еднофамилни жилищни сгради
Изложение: Изложение: Изток, Запад
Застроена площ (Етаж 1): 92,11 кв. м.
Застроена площ (Етаж 2): 82,56 кв. м.
Застроена площ (Етаж 3): 82,56 кв. м.
Обща разгъната застроена площ: 257,23 кв. м.
Двор: 133 кв. м.
Двор + Веранда: 171,77 кв. м.
Обща площ на парцела: 248,49 кв. м.
Разпределение: Дневен тракт с кухня, сервизно помещение, тоалетна, двор + веранда, 4 спални, 2 бани с тоалетни, мокро пом., гараж.
Две паркоместа са включени в цената.
ПРЕДИМСТВА НА ИМОТА
- Над 50% озеленяване - засаждане на дървета и друга зеленина;
- Контролиран достъп и видеонаблюдение;
- Професионална поддръжка на всички зони;
- Детска зона за игра, алеи за бягане и площадка за спорт;
- Лесен достъп до главни пътни артерии - Околовръстен път;
- Висок клас строителство и материали;
- Спокойна среда и чист въздух;
- Зони за разхождане на домашни любимци;
- Изцяло изградена вътрешна инфраструктура;
- Много светлина и продължително слънцегреене.
ЛОКАЦИЯ НА ИМОТА
Намира в район с изключително чист въздух и доказана липса на вредни емисии и електромагнитни лъчения. Природата и заобикалящата го среда са максимално запазени, което осигурява на обитателите спокоен и качествен живот. Локацията осигурява възможност за бърза връзка с града, като само за няколко минути имате достъп до Околовръстен път.
Цената е без ДДС.
АКТ 14 - април 2026 год.
АКТ 15 - декември 2026 год.
АКТ 16 - юни 2027 год.
Планирано завършване - юни 2027 год.
Реф. № 7706













